教程-继电保护/保护装置配合(ANSI)
本教程将指导您了解EasyPower保护与协调™协调程序中的几个主要特性。
保护配合焦点
要执行保护装置的配合,你必须在配合焦点。
- 在文件菜单中,点击打开文件。
- 打开Samples文件夹中的Protection-1.dez 文件。
- 在单线图窗口上点击
最大化,如果需要的话,可以放大单线图填满整个窗口。 - 点击
配合打开配合焦点。
提示: 如果你正在查看起始页,你也可以点击打开单线图。
打开TCC
- 点击
打开TCC。 - 在打开TCC 对话框中,选择TCC-1并点击打开打开TCC。
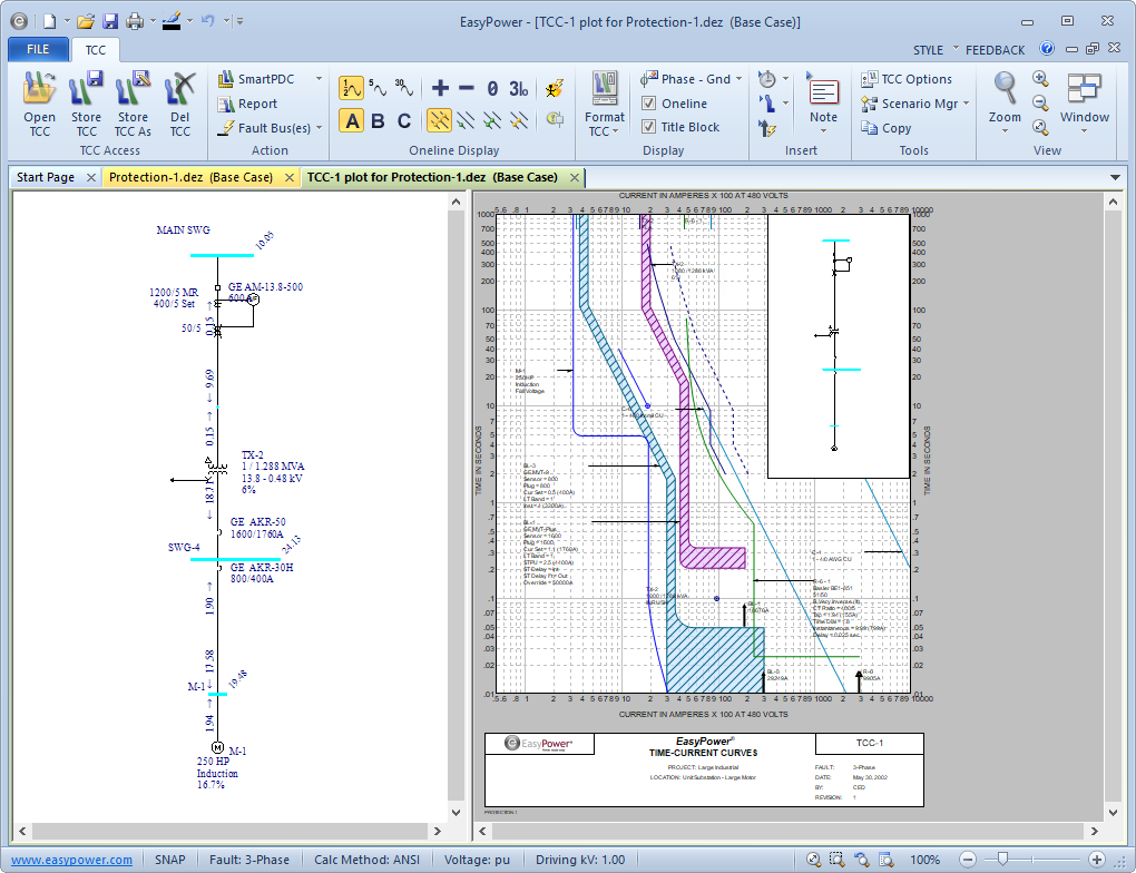
图23-1:TCC绘图
曲线的动态配合
EasyPower TCC窗口支持动态拖动所有保护装置的曲线。这为改变装置设置提供了容易且平滑的界面。
将鼠标放在TCC图中的继电器R-6上,直至出现双向箭头,然后可上下拖动曲线。继电器的时间整定参数可动态变化。工具提示可以显示最近的时间设置。
注释: 双击继电器,也可通过继电器对话框更改继电设置。
图23-2:TCC曲线的动态配合
TCC单线图
TCC窗口中有两个单线图:一个在TCC内部,一个在TCC左边。(本教程中分别成为“内部TCC”和“左边TCC”。)
内部单线图是左边单线图的缩小视图、这也提供了TCC的打印预览图。如下图所示,内部单线图可以移动或调整。
在左边的单线图中,可以使用EasyPower 所有单线图典型的通用接口移动、拖动或修改设备项目。内部单线图仅仅是左边单线图的图像。
注释: 左边单线图中的移动或拖动并不影响在数据库编辑中创建的主单线图。
图23-3:TCC单线图的拖动和调整
TCC中的短路(分析)集成
TCC窗口是直接集成与EasyPower.短路分析故障电流在TCC单线图中的显示正如在主单线图中的显示一样。此外,在 TCC选项中指定(相应功能)时,可根据计算出的短路电流自动裁剪TCC曲线。
- 在左边单线图中,双击SWG-4。
SWG-4短路故障时,短路故障电流和远程电流自动显示。此外,根据故障电流和远程电流TCC刻度和裁剪电流可自动调整。

图23-4: 继电器曲线夹在远程电流曲线上
- 双击绿色的继电器曲线。出现临时继电器数据对话框。将TCC裁剪选项设为使用30周波电流(见下图)。点击确定。

图23-5: 临时继电器数据对话框
中的TCC剪切修改继电器曲线现在剪切在30周期故障电流,而不是最大½周期故障电流。这为设定合适的继电器整定值提供了灵活性和准确性。
注释: 您可能希望在临时中继数据 对话框中尝试更改一些其他设置。如键入新的函数曲线ID可增加继电器的多条函数曲线。在设置选项卡中可修改继电器的瞬时和时间整定设置;在外观选项卡中可修改曲线类型和颜色。
- 在TCC中,单击
母线故障按钮,可显示每条母线的最大故障电流。 - 点击
TCC选项。在(弹出的)TCC选项对话框中,在短路控制选项卡下选择用户自定义, 然后点击确定。
注意刻度条和裁剪点在TCC中也会相应调整。
TCC刻度条和裁剪点根据用户在每个保护装置对话框中自定义的电流进行更新。例如,双击蓝色固态跳闸(SST)曲线,选择短路页签,在TCC-1相位SC值中,在 瞬时下输入22 ka。注意,TCC上的短路标记现在反映了用户输入的值。
打印TCC
在TCC中,单击
打印。在(弹出的)如下图所示的打印TCC对话框中选择相应的打印选项并点击确定。
TCC曲线打印所见即所得,或者更准确地说是屏幕显示的。这使得清洁、专业的打印速度更快、更方便。

图23-6: 打印TCC对话框
TCC对话框
更改保护装置设置,可双击任意一条TCC曲线或者单线图中的元件。通过对话框可以更改装置设置和曲线特性。
注释: 电缆、变压器和电动机参数的完整列表信息在数据库编辑焦点中可用。若想在TCC中查看这些信息,右击曲线,选择数据库信息。
创建和储存TCC
选择单线图元件并单击一个按钮可以创建TCC。
- 从窗口按钮中,选择Protection-1.dez,从而激活主单线图窗口。
- 选中一组元件可以在其周围拖动一个框或者按住SHIFT键单独选中各个元件,然后单击
TCC绘图按钮,生成新的TCC窗口。 - 双击任意TCC元件或区域可以显示相关临时对话框。通过这种方式,可以更改TCC曲线、颜色、注释、标题栏和其它选项。
- 完成TCC的设置后,点击另存为,键入名称,单击确定即可。
注释: 可以拖动文本框至任意位置提高可读性。
结论
这是 EasyPower保护与协调™功能的简要概述。你可能需要使用Protection-1.dez文件中的其它TCC。此外,保护与协调™中还提供了其他一些功能,本教程中没有详细讨论这些功能。其中一些功能列举如下:
- 完全用户定义的EasyPowerTCC曲线库
注释: 标准EasyPower库已经有了完整的TCC曲线数组,但如果需要
,还存在一个简单的曲线输入接口。 - 复杂的(增强型)继电器和电流互感器图,包括差动继电器、接地电流互感器等。
- 有多条时间-电流曲线的多功能继电器。
- 全面支持SST、非SST、热磁、继电器和保险丝保护装置曲线。该模块还支持电动机起动曲线,以及电缆和变压器损坏曲线。
- TCC曲线间的时间差指示器。
EasyPower帮助主题更深入地涵盖了这些特性和其他特性。要打开
帮助,请单击EasyPower窗口右上角的“帮助”或按F1。