影响电动机起动

启动电机:

  1. 求解初始潮流。这些结果被用作用于电流注入的初始条件。
  2. 在你想要放置起动负荷的地方双击电机或MCC。临时电动机数据对话框将会弹出,出现类似于以下内容:
  3. 显示临时电机数据对话框。

    图7-1:1临时电动机数据对话框

  4. 选择启动电机复选框,填写电机的信息,并点击确定。然后点击求解电机启动求解过程,并显示在电机启动的结果。

启动电机的HP对于现有的负荷模型是一个额外的负荷。电机启动选项将添加一个用户自定义的HP(实际锁定转子电流)到负载,当然这只在电机启动的情况下才会出现。电动机的起动负载不影响潮流负荷。

重要: 当启动电机时,缩放系数必须被适当地设定。如果你已经为一个独立的7000马力电机建模并且当你想开始的时候, 缩放系数需要被设置为零,以表明电机当前未运行。如果缩放系数为100%时,程序将启动一个7000马力的电机。如果将一个EasyPower电机建模为一组电机,则可以指定该组中当前运行的电机的百分比,然后启动该组中的单个电机。

影响电机启动的例子

例如,考虑一个现有的电机负载是7000 HP,缩放系数为100%的电动机。基本情况潮流结果表明,与5.676兆瓦和1.866兆乏流入7000马力电机的0.993每单位总线电压。这也可以显示为功率因数为0.95的5.975 MVA复功率。

图7-2:1基本情况潮流和影响电机启动解决方案

对于这种情况,一个3000马力电机正在启动。现有7000马力电机负载现在保持不变。请注意,由于高度滞后的起动电流,该电机母线电压已经下降到0.943标幺值,无功潮流已增加到17.564 MVAR。起动电机HP和功率因数低于正常电机负载。

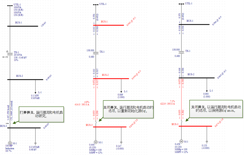
带电容的马达启动

为了求解电动机起动电容器,我们需要在单线图中电机和启动电容的上游插入断路器或开关。参见下图。在求解潮流和电机起动方案之前,需要断开断路器。这得到了没有电机和电容器的潮流初始解,运行潮流和电机起动解决方案,然后闭合断路器来连接电机和启动电容。现在,你得到最终求解结果。如果需要查看没有启动电容器的电动机起动求解结果,请断开连接到电容器的断路器。

注意,在 EasyPower 11.0之前,程序总是自动求解开关关闭后和运行求解电机之前的功率流,以获得新的源内部电压Eq’在这个过程中,已经考虑了电容的影响,得到一个相对来说较低的Eq’,因为它被认为是在使用之前,电机真正启动。

从11.0版本开始,EasyPower提供了一个额外的选项,在不考虑启动电容的影响的情况下,在源内部电压Eq’as-is的情况下运行解决电机,因为源在开关关闭前无法看到电容。这个版本更实际,也更优化。

您可以在控制选项卡上的潮流选项中找到此选项。

图7-3:2电动机启动求解方法

图7-4:3电机启动与启动电容和解决方案-与各种Eq'选项

更多信息